362 Ashley Crescent Se Calgary, Alberta T2H 1T7
$449,000
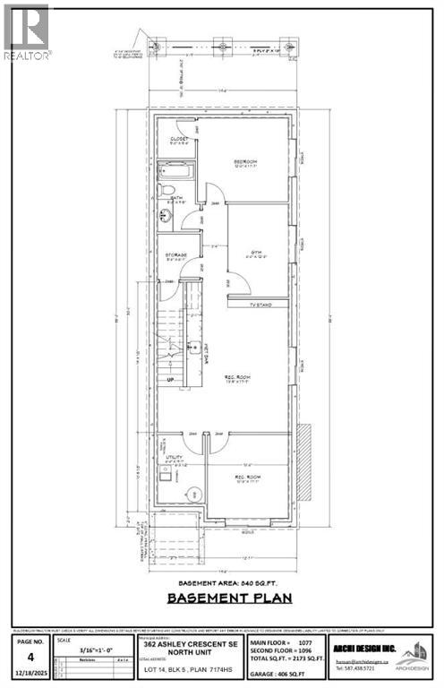
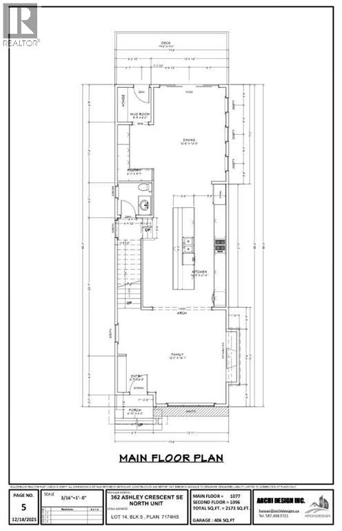
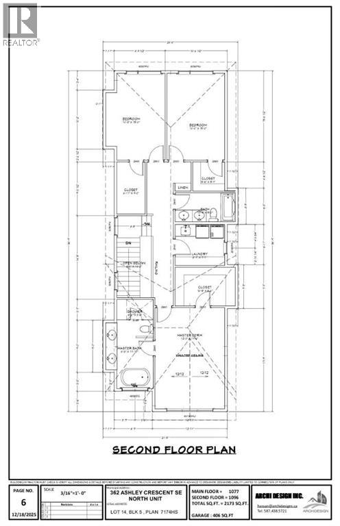
Lot for sale in Acadia! 27.5 Feet Wide by 120 Feet Deep! This lot comes complete with plans as well as a development permit. You have the opportunity to build a 2 storey inner city project as a great home to live in or investment. Approved plan is for a modern infill, 2173 Square Feet - 2 Storey home. Home has been demolished and site is ready for construction. Both lots are available for sale. (id:58331)
Property Details
| MLS® Number | A2304337 |
| Property Type | Vacant Land |
| Community Name | Acadia |
| Amenities Near By | Playground, Schools, Shopping |
| Plan | 7174hs |
Building
| Age | Age Is Unknown |
Land
| Acreage | No |
| Fence Type | Not Fenced |
| Land Amenities | Playground, Schools, Shopping |
| Size Frontage | 8.38 M |
| Size Irregular | 3299.00 |
| Size Total | 3299 Sqft|0-4,050 Sqft |
| Size Total Text | 3299 Sqft|0-4,050 Sqft |
| Zoning Description | R-cg |
Contact Us
Contact us for more information






